ポートメッセなごや(名古屋・金城ふ頭)の「アクセス」「座席」「楽しみ方」を解説します【第1・第2・第3展示館】

初めてポートメッセなごや(名古屋市国際展示場)のライブ・イベントに訪れる人を対象に、会場までの行き方や施設の概要、現地での楽しみ方について紹介します。

名古屋の「大箱」の代表格のイベント会場。
名古屋駅からあおなみ線利用で終点まで行くシンプルなアクセスですが、帰りの混雑に注意しよう。
ポートメッセなごや(名古屋市国際展示場)は、中部地区最大規模の「MICE(マイス:国際見本市会場)として、1973(昭和48)年、当時の第1展示館が名古屋市の金城ふ頭に建設され開業しました。
以降、1987(昭和62)年に第2展示館・イベント館が、1993(平成5)年に第3展示館・交流センター・立体駐車場が竣工したのち、2022(令和4)年にリニューアルされた第1展示館とコンベンションセンターが竣工し、現在の姿になりました。開館以来、見本市・展示会をはじめ数多くのイベント、集会が開催され、現在に至っています。
出典:ポートメッセなごや公式サイトより第1展示館 第3展示館 イベント館 第2展示館 コンベンションセンター 交流センター
特に、ライブ会場としての使用は、アリーナツアーの名古屋公演でメインに使用されている日本ガイシホール(名古屋市体育館)が、2024(令和6)年から2026(令和8)年1月頃まで改修工事に入り休館しているため、当会場を利用する機会が増えています。
ポートメッセなごや (名古屋市国際展示場)【公式】(@portmesse_PR)さん / X
ポートメッセなごやまでのアクセス

会場最寄り駅はあおなみ線の終点「金城ふ頭」駅です。始点の名古屋駅から終点まで乗車する形になり、乗車時間は約24分です。会場で公演がある日は、終点の金城ふ頭駅まで直通の臨時列車が運行される場合があり、その際は18分~20分程度で到着します。
ここでは、セントレア(中部国際空港)から名鉄線経由で名古屋駅に到着した場合と、新幹線で名古屋駅に到着した場合の、あおなみ線名古屋駅までの各ルートを紹介します。
セントレアから名鉄線経由で名古屋駅へ

セントレアまで飛行機で来た場合は、名鉄線で中部国際空港駅から名鉄名古屋駅まで乗車し、あおなみ線改札に近いJR名古屋駅太閤通口方面に移動します。
中部国際空港から名鉄名古屋駅までの所要時間は、全車指定特急のμ(ミュー)スカイの場合は約28分、一部指定席の特急の場合は約42分で到着します。運賃は片道980円、特急車指定席券を購入する場合は、別途300円~450円(時間帯・繁閑期により差額あり)かかります。
出典:ポートメッセなごや公式サイトより
あおなみ線の改札は、新幹線名古屋駅の北口・南口からの方が近いので、まずはその近くの待合せスポット「銀の時計(銀時計)」前までの徒歩ルートを紹介します。
名鉄名古屋駅からは、西改札口または北改札口から出て移動します。

名鉄の中部国際空港駅から名古屋方面の特急や急行列車に乗車します。

全車指定席特急「μ(ミュー)スカイ」の車内です。

名鉄名古屋駅(中ホーム)に到着しました。

ホームから西改札口または北改札口方面に移動します。
西改札口から
出典:名古屋鉄道㈱ホームページより
まずは西改札口改札に向かうルートから。上の図の水色の3番ホーム中央付近にある階段またはエスカレーターで、青い線と赤い点線に従い番号と逆方向(⑤→①)に進みます。
エレベーターやエスカレーターが設置されており、スーツケース等の重い荷物がある場合の利用に便利です。

ホーム中央付近のエスカレーターでまずは改札階に移動します。

案内に従い、西改札口に進みましょう。

改札を出たら、そのまま地上に出て左側に移動します。

成城石井の前の歩道を渡り、名古屋駅広小路口に向かいます。

広小路口横の通路を直進します。

やがてJRの南北自由通路に出るので、左に曲がりましょう。

そのままコンコースを反対側の太閤通口方面に進んでいきます。

待合せスポットの銀の時計前に到着しました。
北改札口から
出典:名古屋鉄道㈱ホームページより
続いて北改札口に向かうルートです。同じく3番ホームに降車後、乗ってきた電車の進行方向側の端にある階段に向かい、あおなみ線方面に移動します。
北改札口は階段しかありませんがJR・新幹線側に近く、移動距離は短くなります。

名鉄名古屋駅3番ホームから、端にある階段を上り、北改札口に進みます。

北改札口を出て右側に移動します。

タイルの色が変わり、JR名古屋駅の太閤通口と桜通口をつなぐ南北自由通路エリアに入ります。

駅ビル側に入ると、セントラルタワーズの上階に行くエレベーターとホテルマリオットアソシアの間に通路があります。

西改札口からと同様、南北自由通路のコンコースに出ました。そばに金の時計(金時計)があります。

案内に従い、反対側の太閤通口方面に移動します。

在来線の名古屋駅改札の前を通過します。

太閤通口側の銀の時計前に到着しました。ここから先は、新幹線下車後のルートで紹介します。
新幹線名古屋駅からあおなみ線に乗り換え

さて、ここからは新幹線で名古屋駅まで来た場合の乗り換えルートを合わせて紹介します。新幹線の改札は北口と南口があり、どちらの改札からも「銀の時計」前に出ます。

改札を出たところにある「銀の時計」からスタート。太閤通口手前の通路を左に進みましょう。

太閤通口の案内板を確認。「あおなみ線」と記載された方向に移動します。

しばらく通路幅が狭いところを通ります。駅弁屋や「矢場とん」の店があります。

突き当りの「名古屋うまいもん通り」に差し掛かった所で、左に曲がります。

あおなみ線名古屋駅の改札に到着しました。

運賃表を確認。金城ふ頭駅までの運賃は片道360円です。

公演のある日は、終点の金城ふ頭駅までノンストップの臨時列車が仕立てられることがあります。

改札を通り、2階ののりばに進みます。

始発駅なので、1・2番線のどちらかに到着している電車に乗りましょう。

先発のノンストップの臨時列車に乗車しました。

あおなみ線の車内です。椅子はシンプルなロングシートです。

各駅停車は約24分で、直通の臨時列車は約18分で、終点の金城ふ頭駅に到着です。
金城ふ頭駅からはデッキで直結
出典:ポートメッセなごや公式サイトより
金城ふ頭駅に着いたら、駅から会場の各施設までは歩行者デッキで直結されており、迷うことは少ないと思います。

案内表示に従い、改札を出て直進していきます。

そのまま第1展示館横のデッキに出ました。

突き当りの左側に第1展示館の2階玄関があります。この日は関係者専用の入口になっていました。

第2展示館や第3展示館へは、右側に続いているデッキを移動して向かいます。

途中、左側に中間地点のコンベンションセンターがあります。

そのまま奥に進めば、第2・第3展示館の前に着きます。
ライブ開催時は混雑緩和のため迂回ルートが設定
ただし、ライブ開催時は整理入場を行うことが多く、迂回して回り道をする動線になることを確認しておきましょう。今回は第1展示館でのライブ開催時の動線を見ていきます。

まずは金城ふ頭駅の改札を出ます。

本来は直進するところ、左側から1階に移動するよう指示されます。

駅の階段を降ります。

いったん会場とは逆のリニア・鉄道館方面に進みます。

ロータリーを迂回しながら、第1展示館方面に移動します。

建物脇に到達したら、壁沿いに進んでいきます。

建物の1階エントランスロビーまで来たら、手荷物検査とチケット確認が行われます。

一連の確認が終わると、ようやく建物1階の玄関から中に入ります。お疲れ様でした。
帰りのあおなみ線はかなり混雑します

行きのアクセスの時点でだいたい想像できると思いますが、名古屋駅方面に向かう帰りのあおなみ線は、行きよりもさらに混雑します。エリアごとの整理退場が設定されることも多く、入口から遠かったり、順番があとの方だったりすると、駅まで長い待機列に並ばざるを得ないこともあります。
地下鉄「築地口」駅までのタクシー利用も検討
出典:ポートメッセなごや公式サイトより
待ち時間が長くなり、帰りの新幹線等の時間が心配な場合は、タクシーで同じくベイエリアにある地下鉄名港線の築地口駅に向かい、そこから金山駅・名古屋駅を目指した方が早く着く場合があります。
料金は約3,500円かかりますが、新幹線代が無駄になるよりはマシだと思います。
ポートメッセなごやはこんな所
第1展示館

第1展示館の敷地面積は約2万㎡(20,160㎡)で、柱のない「無柱」空間です。鉄骨構造の3階建ての構造で、天井高は20mあります。
展示スペースとしての利用がメインのため、空間を間仕切りで4分割することが可能で、用途や規模に合わせて様々なレイアウトに変更が可能です。ライブ形式で使用される場合、主にアリーナ席とブリージア席に分かれ、客席が設置されます。
アリーナ席

アリーナ席は、敷地の中央にあるフラットな空間に設けられます。レイアウトの詳細は公演ごとに異なりますが、下の写真のように、ブロックごとにアルファベット表記がされて配置されるのが基本です。

今回訪れた公演では、縦がステージに近い方から順にAからHまでの8箇所のアルファベット表記、横は1から11までのナンバリングでブロック分けされ、途中のDブロックとEブロックの間に広めの通路が確保されていました。


ステージは基本建物の南側に設置されるので、当然ながらステージから遠ざかるほど見えにくくなります。今回のレイアウトはA5・A6ブロックが、ステージに近いいわゆる「神席」に相当すると思います。

公演によっては、メインステージに加えて花道やセンターステージが設けられることもあるので、その場合には後方からでも、演者を間近に見られる可能性があります。

その他、車椅子用のスペースは、アリーナ席中央付近のエントランス寄りの場所(今回はDブロックの西端)と、後述するブリージア席のE2・E3ブロックの間に、周囲との段差を設けて設置されていました。
アリーナ席 座席

アリーナ席の座席はご覧の通り、よくある青い座面・背もたれのパイプ椅子です。隣の席との間隔も詰められて配置されるため、長時間の視聴に堪えられる座り心地は、正直言って期待できません。簡易シートやクッションを持参することをおすすめします。
今回の公演は主に着席での鑑賞でしたが、アイドルや若いアーティストのライブの場合は、スタンディングがメインとなるので、荷物置きや公演のMC中の休憩スペースとして割り切れば、特に気にならないかもしれません。
また、隣りの席との間隔は狭くても、前後の座席間隔はそれなりに確保されていました。
ブリージア席

ブリージア席は、アリーナ席を取り囲むように設置されている可動階段席で、イベント内容や規模に応じ配置を変更できます。私は最初チケットの券面を見て花の「フリージア」だと思い、エリアごとに名前が付いているのかと勘違いしましたが、 「ブリージア」はギリシア語で「階段状の席」を意味します。
本会場のブリージア席は、アリーナの東側(E1・E2・E3)、西側(W1・W2・W3)、北側(N1)の計7つのブロックに分かれて配置されます。横浜アリーナや大阪城ホールのようなスタンド席ではなく、あくまで敷地内の壁寄りに階段状に設置されます。今回訪れた公演ではE1・W1ブロックを使用せず、その付近にステージが設置された仕様でした。
ステージは南側にあるので、E・Wブロックは斜めから、N1ブロックは後方正面から見る形になります。


座席はフル仕様の場合、E・W・Nブロックともに1列から17列まであります。座席間は1段あたり目測ですが10cm程度の段差が2段分付けられています。


また、1列あたりの座席は、E1・E2、W1・W2の各ブロックが38席、E3・W3ブロックが54席、N1ブロックは14席ずつ6ブロックに分かれ配置されています。

ブリージア席 座席

ブリージア席の座席は、跳ね上げ式の黒い座面・背もたれの組み合わせで、ライブハウスなどにあるような仕様のものです。

肘掛けやクッション等の厚みはありませんが、弾力性のある素材で出来ており、アリーナ席よりは座り心地は悪くないでしょう。また、前後の座席間の間隔も余裕を持って取られており、さほど窮屈さは感じませんでした。
第1展示館 座席表
出典:ポートメッセなごや公式サイトより
第2展示館
出典:ポートメッセなごや公式サイトより
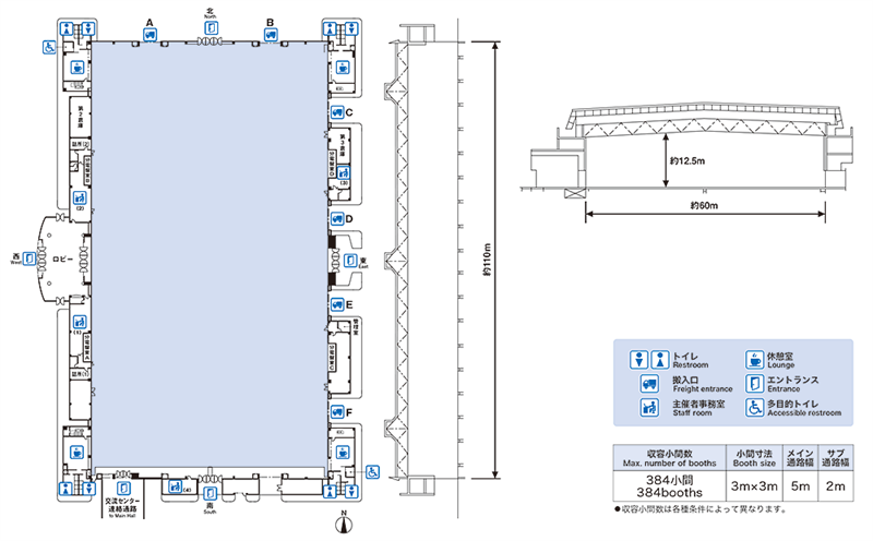
第2展示館の敷地面積は約6,500㎡(6,576㎡)で、第1展示館より少し小ぶりですが、同様の無柱空間で、天井高は12.5mの鉄骨(一部鉄筋コンクリート)の2階建て構造です。
展示スペースとしての利用のほか、第1展示館ほどの頻度ではありませんが、可動椅子等を持ち込んだコンサートやプロレス大会等の興行も開催されています。
配置図(出典:ポートメッセなごや公式サイトより)
2025年6月の公演では、ハンモックやリクライニングチェアを持ち込んで、寝そべりながら生演奏を聴くコンサート企画もありました。
CHILL CLASSIC CONCERT-チルクラシック- 寝そべって聴くオーケストラ
第3展示館
出典:ポートメッセなごや公式サイトより
第3展示館の敷地面積は13,500㎡で、第2展示館のほぼ倍のキャパのスクエア型の無柱空間です。天井高は10~15mで、第2展示館と同じ鉄骨(一部鉄筋コンクリート)の2階建て構造です。
配置図(出典:ポートメッセなごや公式サイトより)
第1展示館同様、間仕切りにより4分割が可能な会場で、展示規模や企画内容に応じ、様々な用途での利用が可能です。
フードコート(コンベンションセンター内)

第1展示館と第2・第3展示館の間に位置するコンベンションセンター内にはフードコートが設置されており、「尾張式。」と「DiSH PARADE」の2つのレストランで食事を摂ることができます。

コンベンションセンターの案内とともに、フードコートの案内もあります。

キャパは300席。主に昼間の展示スペースの来客が使用しますが、時間が合えばライブ遠征客も利用できます。
尾張式。

「尾張式。」はその名の通り、味噌カツやきしめん等の「名古屋めし」をはじめとした地元グルメを提供している食堂です。

注文と会計はセルフレジで行います。現金・電子マネー両対応です。
DiSH PARADE(ディッシュパレード)

「DiSH PARADE(ディッシュパレード)」では、木製のプレートに載った定食メニューや各種カレーライスを提供しています。

こちらの店も電子マネー・現金両対応のセルフレジで注文・会計を行います。

唐揚げディッシュ(¥1,000)を頼みました。17:30オーダーストップだったので、夜公演前にギリギリ利用できました。
レストラン・カフェ(交流センター・イベント館内)
第2・第3展示館近くにある交流センターやイベント館にも、レストランやカフェがテナントとして入居しています。
東山ガーデン
出典:ポートメッセなごや公式サイトより
レストラン「東山ガーデン」は、交流センターの1階にあります。席数は100席あり、定食を中心に、イベントや会議の際のランチをメインに提供しています。
東山ガーデンはこのほか、クルージング事業や名古屋港水族館内のレストラン(ドルフィンズ・カフェ、ドルフィンズキッチン)や名古屋港の「ブルーボネット」内にあるレストラン「アウラ」なども展開しています。
https://hs-garden.co.jp/index.html
喫茶室・レストラン「ふる里」
「ふる里」は、名古屋を拠点に「食」と「イベント」をテーマとした飲食事業を展開している会社で、イベント館1階にレストラン、交流センター1階に喫茶室を出店しています。
レストランでは座席数200席の広々とした空間で、丼もの・麺類・サンドイッチなどを中心に提供しています。
また喫茶室ではレトロな雰囲気の店内で、コーヒーや軽食、パスタなどを提供しています。
この他にもバンテリンドームの売店やフードコート、名駅のサンロード地下街等にも喫茶店を展開しており、地元名古屋ではおなじみのグループです。
https://furusato-okumura.com/TOP
周辺施設
レゴランド・ジャパン(LEGOLAND Japan)
出典:名古屋コンシェルジュ公式サイトより
レゴランド・ジャパンは、会場からほど近い場所にあるレゴブロックをテーマにした屋外型テーマパークです。
レゴブロックの世界観を活かしたアトラクションやショー、ワークショップなどが楽しめる、子供連れの家族向けの施設で、日本ならではのジオラマが見られるミニランドも見どころの1つです。
リニア・鉄道館

会場へのアクセスルートでも出てきたリニア・鉄道館は、JR東海が運営する鉄道博物館で、東海道新幹線を中心に、在来線から超電導リニアまでの実物車両が多数展示されており、高速鉄道技術の進歩を体感できます。
鉄道ファンだけでなく、子供から大人まで楽しめる施設で、実物の車両の迫力や、ジオラマの精巧さなど見どころ満載で、一日中楽しむことができます。
メイカーズピア(Maker’s Pier)
出典:名古屋コンシェルジュ公式サイトより
メイカーズピアは、レゴランド・ジャパンに隣接しており、レストランやお土産店、体験型施設などが集まっています。
飲食店は名古屋めしや様々なジャンルがあり、テラス席があるお店も多く、食事や休憩をしながら、シーフロントの景色を楽しむことができます。
お土産店では、レゴランド・ジャパンのグッズや名古屋土産も購入できます。
Lives NAGOYA(ライブズ ナゴヤ)
出典:メイカーズピア公式サイトより
メイカーズピア内には、1,272人収容のライブハウス「Lives NAGOYA(ライブズ ナゴヤ)」があります。
倉庫のような外観の建物で、音楽イベントから企業セミナーまで、幅広いニーズに対応する多目的ホールです。
出典:LivesNAGOYA公式サイトより メイカーズピア内マップ
クルーズ名古屋
出典:クルーズ名古屋公式サイトより
クルーズ名古屋は、会場のある金城ふ頭エリアや名古屋港ガーデンふ頭、ブルーボネット、中川運河等の一帯と名古屋の都心であるささしまライブを結ぶクルーズ船や水上バスを運行しています。
運航図(出典:クルーズ名古屋公式サイトより)
ライブが夜公演の場合、あおなみ線で向かうのもいいですが、名古屋駅からささしまライブに向かい、中川運河を下って、名古屋都心のビル群や名古屋港の景色を楽しみながら向かうのも一興です。
クルーズ名古屋 | 中川運河と名古屋港・金城埠頭エリアを巡る水上バス
施設概要・地図
所在地
名古屋市港区金城ふ頭3丁目2−1
アクセス
あおなみ線「金城ふ頭」駅下車
徒歩約3分(第1展示館)
徒歩約7分(第2・第3展示館)
ホール
第1展示館
敷地面積:20,160㎡
第2展示館
敷地面積:6,576㎡
第3展示館
敷地面積:13,500㎡
公式サイト
https://portmesse.com/

























